Casa indipendente con giardino nel centro storico

via Bembo, 10-12

ID #27732
home Locali
info
11
square_foot Superficie
info
112 m²
layers Piani
info
2
apartment Tipologia
info
Casa Indipendente
calendar_today Anno
info
1968
chair Arredato
info
Si
directions_car Accessibile con auto
info
No
place Posizione
info
Urbana
info Stato
info
Disponibile
wifi Internet
info
oltre 100 Mbps
Prezzo 32.000 € trattabile

Vuoi saperne di più su questo immobile?

Prenota una chiamata
Valutazione generale
Condizioni tetto
Stato esterno
Stato interno
Impianto elettrico
Impianto termoidraulico
La valutazione è indicativa e non costituisce perizia professionale.

DESCRIZIONE

L’immobile è situato nel suggestivo centro storico, in posizione panoramica, e gode di un contesto tranquillo e caratteristico, tipico dei borghi storici.

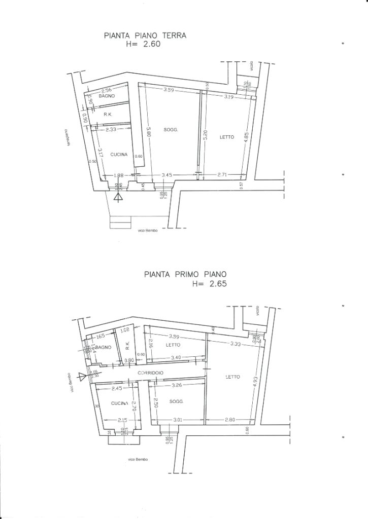
L’abitazione dispone di doppio accesso, che ne facilita l’utilizzo e garantisce maggiore funzionalità degli spazi. Al piano principale l’immobile è composto da cucina, bagno, soggiorno, una stanza da letto matrimoniale e una stanza da letto singola, con ambienti ben distribuiti e luminosi.

Il piano seminterrato comprende un bagno, una cucina, un soggiorno e una stanza da letto, risultando ideale come spazio indipendente per ospiti, taverna o eventuale unità separata.
Di particolare pregio è il grazioso giardino situato immediatamente di fronte all’abitazione, dal quale si gode di una splendida vista panoramica, perfetto per momenti di relax all’aperto.
Si evidenzia inoltre che il tetto dell’abitazione è stato completamente rifatto nel 2024, elemento che rappresenta un importante valore aggiunto in termini di manutenzione e sicurezza dell’immobile. Nel complesso, la proprietà rappresenta una soluzione ideale per chi desidera vivere nel fascino del centro storico, senza rinunciare a spazi esterni e a una piacevole vista panoramica.

MAPPA

Caricamento mappa...

Richiesta Informazioni

Compila il form con i tuoi dati ed indica il motivo della tua richiesta, un nostro incaricato ti risponderà al più presto.

Esta casa ha sido añadida a tus favoritos

Para ver todos sus favoritos, vaya a esta página.

Questa casa è stata aggiunta ai tuoi preferiti

Per vedere tutti i tuoi preferiti vai su questa pagina.